丰顺一中学有新规划,规划方案批前公示
潮客小镇网 来源 :留隍信息网 2025年09月25日
项目信息:
-
项目名称
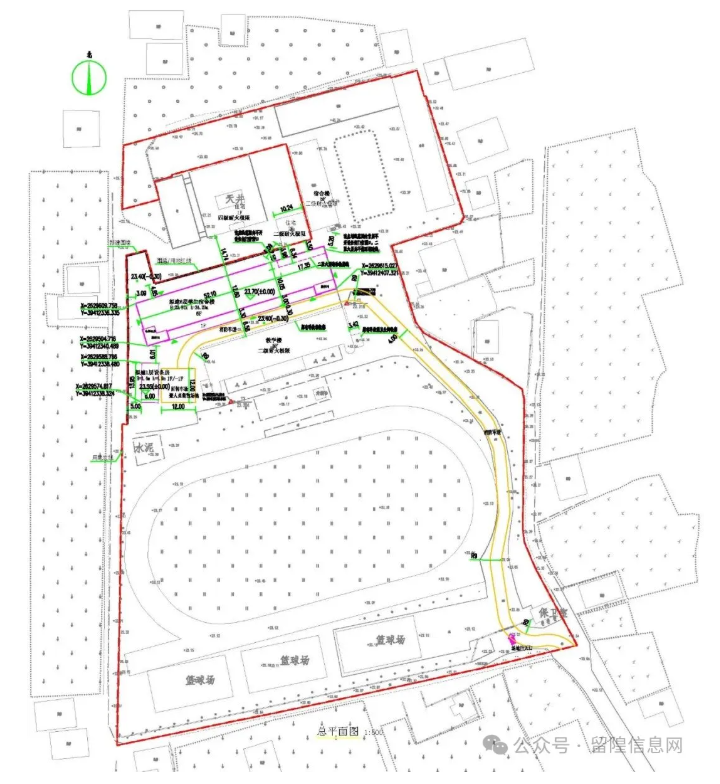
丰顺县普通高中提质扩容工程项目汤西中学高中部学生宿舍楼项目。 -
建设单位
丰顺县教育局。 -
建设地点
丰顺县汤西中学校园内。 -
规划内容
-
新建6层学生宿舍楼,总建筑面积约5270平方米,建筑高度24.20米(含室外地坪标高)。
-
配套建设1层设备房,建筑面积约105平方米。
-
项目用地范围面积约25151.92平方米,建筑基底面积约1210平方米。
丰顺县普通高中提质扩容工程项目汤西中学高中部学生宿舍楼项目规划方案批前公示



来源:丰顺县人民政府网




002.png)









